Countryside - Lakewood Trails - Lot# LW22 - 5672 Cottonwood Ave - LW22

Countryside Slab 2 Car

Lovely 2 story family home on a slab, with high end finishes, located in the great community of Lakewood Trails.

Explore what makes this house unique

Floor plan

Virtual Tour / Videos

Download Detailed Specs

Community Details

Interior Package

Lot Details

Countryside - Lot# LW22 - Lot Size .264

5672 Elderberry Lane, Grawn, MI 49637

Price: $377,000
2 Garage
2 Stories
1200 sf
3 Beds
2 Bathrooms
0 Basement sf
0 Basement Beds
0 Basement Bathrooms

-16x16 cement patio

-High end 14mm laminate

-30" upper cabinets

-Beautiful granite countertops

-Gutters

Interior & Exterior Selections

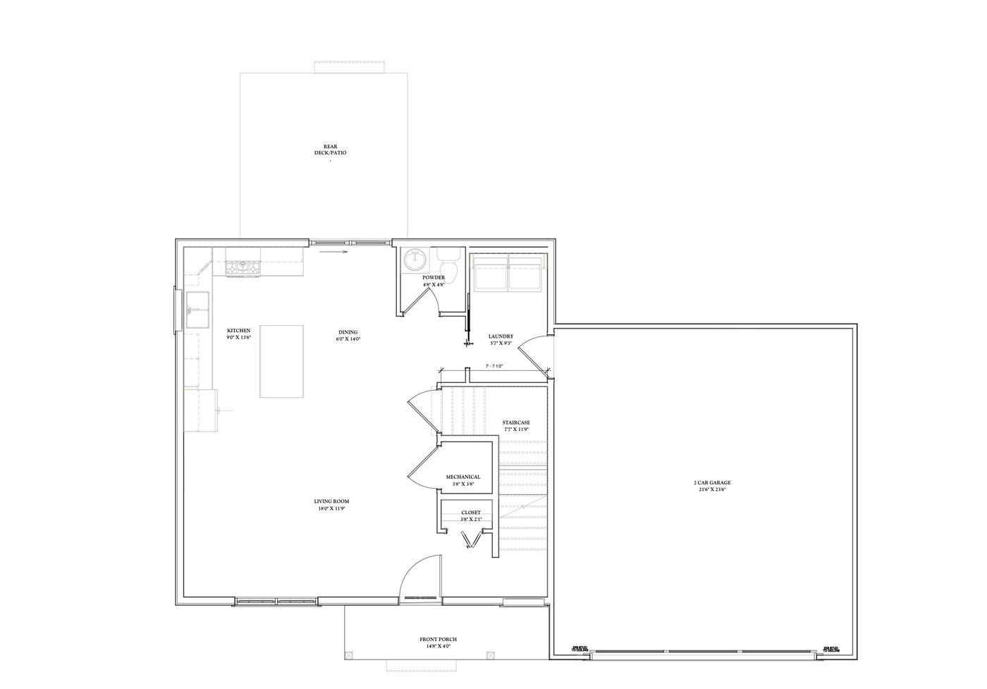
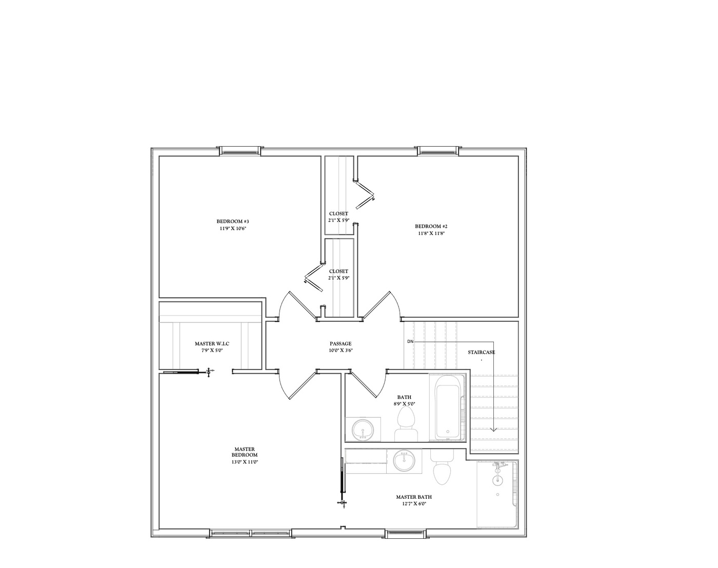
Floorplan

Countryside

The Countryside is the perfect home for a growing family, at an affordable price.

Main House:

  • Spacious coat closet in entry way
  • Open concept living, dining, & kitchen area
  • Large kitchen island
  • 1/2 bath on main …
    3 Beds
    2 1/2 Baths
    2 Garages
    1235 sf

Community

Lakewood Trails

Lakewood Trails offers a unique blend of natural beauty and modern convenience, located right next to Blair Township Park—featuring a splash pad, frisbee golf, trails, pavilions, and brand-new pickleball courts. Kids can safely access the park without crossing any main roads, making it ideal for families. This welcoming community includes city water, private septic, and wooded lots still available. Plus, the HOA takes care of road plowing—so you can spend more time enjoying everything Lakewood Trails has to offer.

Starting from: $325,000